OneLife東十条スピード【▼バストイレ別、独立洗面台、オートロック付き】
| 所在地 最寄駅 |
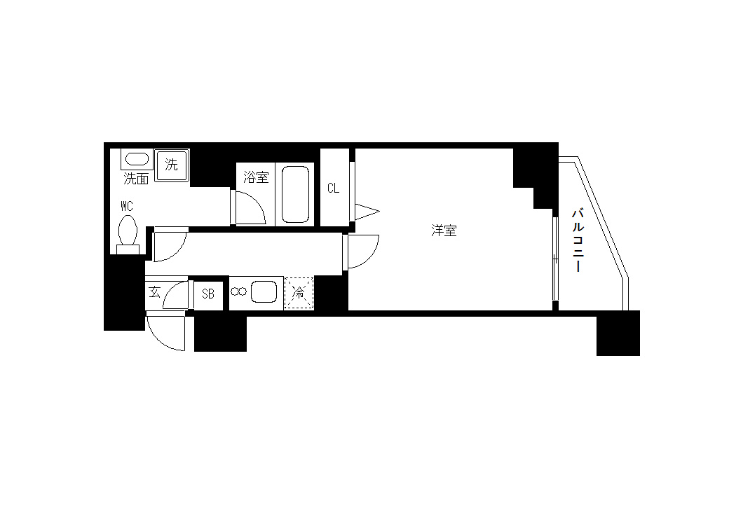
間取り 面積 |
物件種別 建築年数 |
|---|---|---|
東京都北区神谷2丁目1-12 JR京浜東北・根岸線東十条駅 徒歩6分 |
1K 26.24㎡~ |
マンション 2014年12月 |
| 期間 | 賃料 | 光熱費 | 清掃費 |
|---|---|---|---|
| スーパーショート(~1ヶ月未満) | -円/日 | -円/日 | -円/回 (契約時) |
| ショート(1ヶ月以上~3ヶ月未満) | 5,000円/日 150,000円/月 |
-円/日 -円/月 |
16,500円/回 (契約時) |
| ミドル(3ヶ月以上~7ヶ月未満) | 5,000円/日 150,000円/月 |
-円/日 -円/月 |
22,000円/回 (契約時) |
| ロング(7ヶ月以上~12ヶ月未満) | 5,000円/日 150,000円/月 |
-円/日 -円/月 |
44,000円/回 (契約時) |
| その他費用 | 寝具代8,800円(税込)別途要 | ||
- オートロック
- エアコン
- バス・トイレ別
- 洗濯機
お電話でのお問い合わせはこちらから
06-4796-3630(受付)
※お問い合わせの際は、「OneLifeマンスリーを見て」とお伝えいただくとスムーズです。
物件情報詳細
| 所在地 | 東京都北区神谷2丁目1-12 | ||
|---|---|---|---|
| 最寄駅 | JR京浜東北・根岸線東十条駅 徒歩6分 東京メトロ南北線王子神谷駅 徒歩11分 JR湘南新宿ライン赤羽駅 徒歩18分 |
||
| 建物構造 | 鉄筋コンクリート造 | 階建 | 8階建 |
| 間取り | 1K | 駐車場 | × |
| 最大人数 | 2人 | ||
| 設備 | ベッド/エアコン/テレビ/ドライヤー/洗濯機/掃除機/電子レンジ/冷蔵庫/イス/カーテン付き/デスク/ベッド/2口コンロ/2口ガスコンロ/シャワー/トイレ有/バス有/バス・トイレ別/ゴミ箱/ハンガー/トイレ/下水道/上水道/浴室/エレベーター/オートロック/クローゼット/フローリング/暖房完備/冷暖房完備 | ||
| お支払方法 | 振込可・一括可・分割可・クレジットカード決済可 | ||
| 備考 | ★ハイシーズンは、別途「シーズン料金」が発生いたします。 詳細はお問い合わせください。 |
||
お電話でのお問い合わせはこちらから
06-4796-3630(受付)
※お問い合わせの際は、「OneLifeマンスリーを見て」とお伝えいただくとスムーズです。

