OneLife浦和SOUTH【★禁煙ルーム・オートロック】
| 所在地 最寄駅 |
間取り 面積 |
物件種別 建築年数 |
|---|---|---|
埼玉県さいたま市浦和区岸町3丁目1-6 JR京浜東北・根岸線 浦和駅 徒歩9分 |
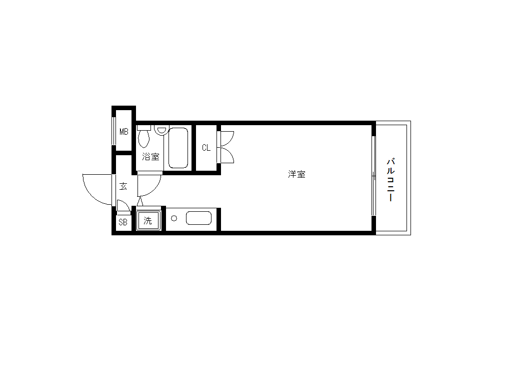
1R 16㎡~ |
マンション 1988年10月 |
| 期間 | 賃料 | 光熱費 | 清掃費 |
|---|---|---|---|
| スーパーショート(~1ヶ月未満) | 7,200円/日 | -円/日 | 11,000円/回 (契約時) |
| ショート(1ヶ月以上~3ヶ月未満) | 7,200円/日 216,000円/月 |
-円/日 -円/月 |
16,500円/回 (契約時) |
| ミドル(3ヶ月以上~7ヶ月未満) | 7,200円/日 216,000円/月 |
-円/日 -円/月 |
22,000円/回 (契約時) |
| ロング(7ヶ月以上~12ヶ月未満) | 7,200円/日 216,000円/月 |
-円/日 -円/月 |
44,000円/回 (契約時) |
| その他費用 | 基本バック代16,500円(契約時)別途要 | ||
- インターネット
- オートロック
- エアコン
- 洗濯機
お電話でのお問い合わせはこちらから
06-4796-3630(受付)
※お問い合わせの際は、「OneLifeマンスリーを見て」とお伝えいただくとスムーズです。
物件情報詳細
| 所在地 | 埼玉県さいたま市浦和区岸町3丁目1-6 | ||
|---|---|---|---|
| 最寄駅 | JR京浜東北・根岸線 浦和駅 徒歩9分 JR湘南新宿ライン 浦和駅 徒歩9分 JR武蔵野線 南浦和駅 徒歩14分 |
||
| 建物構造 | 鉄筋コンクリート造 | 階建 | 4階建 |
| 間取り | 1R | 駐車場 | × |
| 最大人数 | 2人 | ||
| 設備 | ベッド/エアコン/テレビ/ドライヤー/洗濯機/掃除機/電子レンジ/冷蔵庫/イス/カーテン付き/デスク/ベッド/IHクッキングヒーター/シャワー/トイレ有/バス有/ゴミ箱/ハンガー/トイレ/下水道/上水道/浴室/給湯設備/エレベーター/オートロック/クローゼット/フローリング/洗濯機置場(室内)/暖房完備/冷暖房完備/インターネット対応(無料) | ||
| お支払方法 | 振込可・一括可・分割可・クレジットカード決済可 | ||
| 備考 | ★ハイシーズンは、別途「シーズン料金」が発生いたします。 詳細はお問い合わせください。 |
||
お電話でのお問い合わせはこちらから
06-4796-3630(受付)
※お問い合わせの際は、「OneLifeマンスリーを見て」とお伝えいただくとスムーズです。

